產品描述



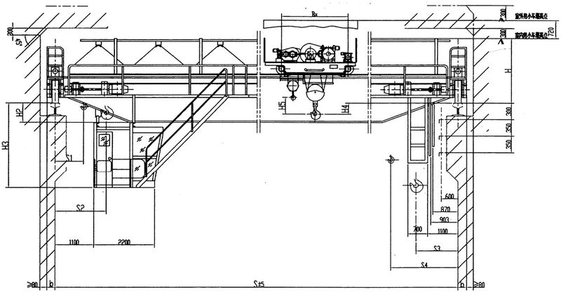
QD型吊鉤橋式起重機,主要由橋架、大車運行機構、小車、電器設備等組成。根據使用頻繁程度不同,分為A5、A6二種工作級別。
該起重機動作操縱全部在司機室內完成。


產品訂購
- 上一篇:QD型75/20~100/20噸吊鉤橋式
- 下一篇:LH型電動葫蘆橋式起重機



QD型吊鉤橋式起重機,主要由橋架、大車運行機構、小車、電器設備等組成。根據使用頻繁程度不同,分為A5、A6二種工作級別。
該起重機動作操縱全部在司機室內完成。

